Based on the time proven original MR1® designed by Mike Dawes, a retired Cambridge UK Chartered Engineer (CEng/PE) and classic car enthusiast. Sealey are now able to offer a revised and updated MR1 with additional safety features, tested in the UK to strict test parameters.
The new MR1® is EP, GB and US patented and is still a DIY-friendly MR1® Car Lift.
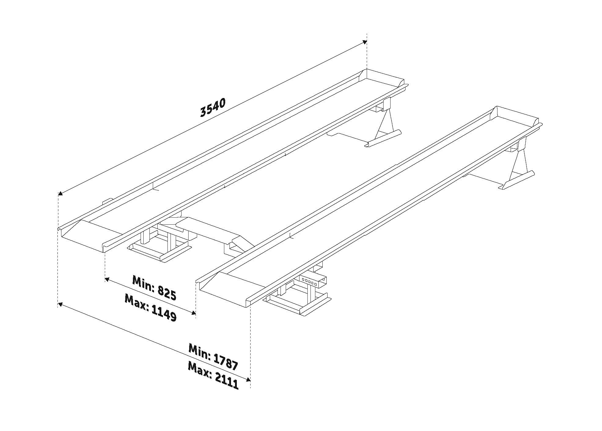
The MR1® has a maximum capacity of 3tonne(3000kg) coupled with an overall wheelbase of 3000mm (based on a 600mm wheel and tyre diameter) and with a variable track of between 1360mm to 1603mm (at the ramps centre lines) it will accommodate a wide variety of vehicles. (Max. single Axle weight of 1800kg)
When lowered, this comprises two long shallow ramps supported by pivots at the upper ends. A rigid lifting beam connects the lower ends of the ramps. When a car has ascended the ramps, the lifting beam, ramps and car can be raised together using a conventional trolley/floor jack, which slots into a central gap in the lifting beam. The raised ends of the ramps can then be supported on specifically designed stands and the trolley jack and lifting beam can be removed.
The MR1® is the simplest known lift/ramp for raising a car horizontally on all of its wheels. It gives a clear floor space to work under a car and is ideal for use in a narrow/low head-room garage.
Benefits of the New Sealey MR1®
1. Safe and easily operated by one person in less than 2 minutes.
2. Easy to drive up the shallow (6 degree) ramps.
3. Rises to a convenient and safe height for entering and exiting a car.
4. Raised to horizontal and lowered with the single use of a trolley or floor jack.
5. Able to provide a clear floor space for working under a car and a good height for working on top or inside.
6. Excellent for car servicing, repairs, cleaning, display, storing a car on when the space inside a garage is limited.
7. Adjustable to match the width of a car.
8. Low maintenance and designed to last.
9. Portable, so may be easily moved inside or outside a garage.
10. Easily assembled or taken apart for storage or transportation.
Will my garage be large enough?
To determine if the internal length of your garage will accommodate a car on the new MR1 please scroll down to the first image of the overall dimensions and allow for the nose overhang of your vehicle.
The inside width of your garage will not be a problem provided you have room to enter and exit your car inside your garage.
The recommended minimum internal height of your garage is your car's height plus 500mm(20").
To save garage space you may store your car on the lift with the ramps raised or lowered. When lowered, your car will be parked on a gentle slope of 6 degrees, which is less steep than many public roads or driveways!
However, if you want to take your lift apart, this is easy to do, and the ramps may be stored to the side or under the car if it has a ground clearance of more than 125mm(5").
What trolley/floor jack and axle/jack stands do I need for the standard lifts?
The trolley jack needs to have a minimum jack pad entry height of less than 100mm and a maximum lift height of at least 440mm. See our website for suitable jack options.
How do I buy an MR1® Car Lift?
Click here for more information, up to date pricing and to locate a stockist.



